4 bedroom
2 bathroom
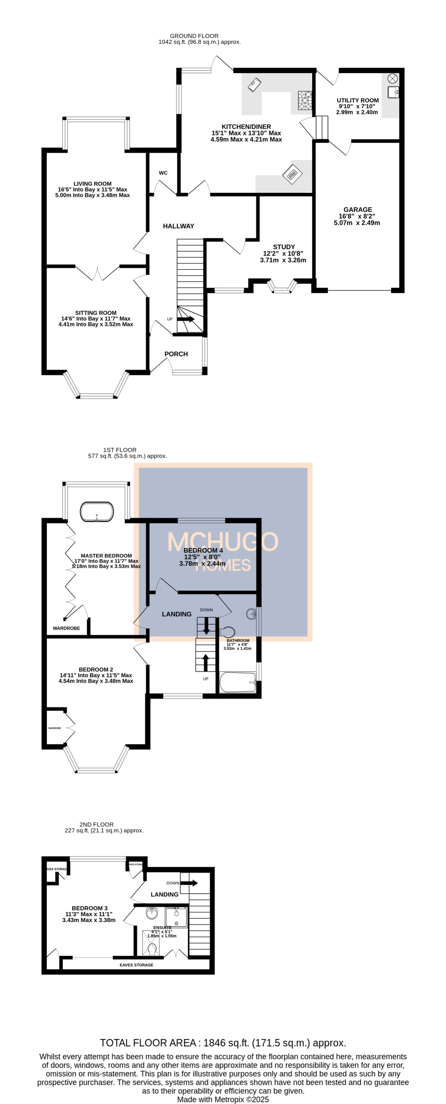
1846 sq ft (171 .5 sq m)
4 bedroom
2 bathroom
1846 sq ft (171 .5 sq m)


Situated in an aspirational district of Harborne, this property on Elm Tree Road is a stunning and versatile four-bedroom residence that blends character with modern comfort. From its stylish interiors to its thoughtfully designed layout, this property offers an exceptional family lifestyle.
The welcoming hallway leads into a series of generous living spaces, ideal for both relaxing and entertaining. The traditional kitchen and utility area are complemented by a dedicated office space, perfect for home working or study. Upstairs, the bedrooms are bright and well-proportioned, with the bedroom on the top floor featuring a private ensuite and tranquil views.
ApproachLarge brick paved driveway with wall and fence to boundaries with access to the garage via an up and over door and rear garden as well as benefiting from a electric charging point for your vehicle.
PorchDouble glazed window and door to front elevation, tiled flooring, power points, ceiling light point and single glazed window feature to stairs.
Hallway'Ted Todd' hard wood flooring, two radiators, two ceiling light points, stairs to first floor and doors leading to:
Sitting Room'Ted Todd' hard wood flooring, double glazed bay window, decorative panel moulding, ceiling coving, ceiling light point, radiator, power points and log burner.
Living Room'Ted Todd' hard wood flooring, double glazed bay window to rear elevation, ceiling coving, two ceiling light points, radiator, power points and mantle with fire.
Downstairs WCObscure double glazed window to rear elevation, low level WC, sink within vanity unit, radiator, ceiling and wall light point.
Kitchen / DinerDouble glazed windows to side and rear elevation, double glazed door leading to rear garden, wall and base units with integrated fridge, dishwasher, oven and five ring gas hob with over head extractor, sink with drainage area, part tiled walls, four ceiling light points, power points, radiator and laminate flooring.
UtilityDouble glazed stable style door leading to rear garden, double glazed window to rear elevation, space and plumbing for washing machine, housing for boiler, sink with drainage area, wall and base units, radiator, ceiling light point, power points and door leading to garage.
OfficeTwo double glazed windows to front elevation, two ceiling light points, carpeted and radiator.
GarageStorage, ceiling light point and power points with up and over door leading to front driveway.
LandingDouble glazed window to front elevation, two ceiling light points, radiator, stairs to second floor and doors leading to:
Bedroom OneDouble glazed bay window to rear elevation with a free standing bath centred in the bay, fitted storage, laminate flooring, ceiling spot lights, radiator and power points.
Bedroom ThreeDouble glazed bay window to front elevation, fitted storage, ceiling spot lights, laminated flooring, radiator and power points.
Bedroom FourDouble glazed window to rear elevation, ceiling spot lights and main light point, laminate flooring, radiator and power points.
BathroomTwo obscure windows to side elevation, free standing bath, low level WC, wash hand basin with vanity below, tiled flooring, radiator and ceiling spot lights.
Second Floor LandingInternal storage, ceiling light point and power points.
Bedroom TwoDouble glazed window to rear elevation, internal storage, carpeted, ceiling light point, radiator and door leading to:
EnsuiteElectric shower cubicle, low level WC, wash hand basin, ceiling light point and 'Velux' sky light to front elevation.
GardenPrivate garden with large patio area for entertaining, lawn with mature trees and shrubs to surround and a large Wendy house for alterative use at the end of the garden.
Further DetailsTenure: Freehold
Council Tax Band: E
EPC: D
Utility supply, rights and restrictions
Broadband: FTTP
Electricity supply: Mains supply
Sewerage: Mains supply
Water supply: Mains supply
Other information
Construction materials: Brick
Roof material: Tile
Disclaimer With approximate measurements these particulars have been prepared in good faith by the selling agent in conjunction with the vendor(s) with the intention of providing a fair and accurate guide to the property. However, they do not constitute or form part of an offer or contract nor may they be regarded as representations, all interested parties must themselves verify their accuracy. No tests or checks have been carried out in respect of heating, plumbing, electric installations or any type of appliances which may be included.
-Edit.jpg)
-Edit.jpg)
.jpg)
.jpg)
.jpg)
.jpg)
.jpg)
.jpg)
.jpg)
.jpg)
.jpg)
.jpg)
.jpg)
.jpg)
.jpg)
.jpg)
-Edit.jpg)
-Edit.jpg)